Eganstown

Eganstown

Victoria

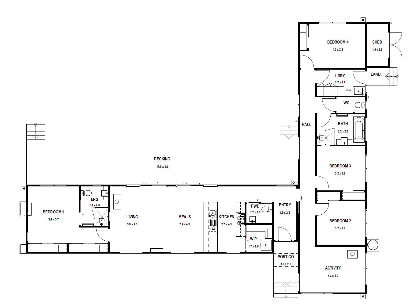
Design: Flinders 17 (Modified)
View design
Bedrooms

4

Bathrooms

2

Area

159sqm

Set in the peaceful bushland just five minutes from Daylesford, the Eganstown Project is a bold four-bedroom off-grid modular home that redefines rural living. Based on our Flinders 17 design with the striking Cubehaus façade, it pairs contemporary form with a sense of calm connection to nature.

 

Designed for complete independence, the home operates entirely off the grid, offering modern comfort without reliance on traditional services. The smart L-shaped layout, warm interiors, and resilient exterior finishes come together to create a home that feels both modern and grounded.

{{item.name}}
Eganstown
Surrounded by native bushland with no nearby neighbours, this project offers a level of privacy and seclusion that makes it a true rural sanctuary.
Eganstown
Inside, the home features a spacious and thoughtfully designed interior, with open living areas and a functional layout that frames views of the surrounding bushland from every angle.

Ready to talk about your own project?

Get expert advice from one of our consultants to help you find your ideal home

Enter search term below

  • There are no suggestions because the search field is empty.