
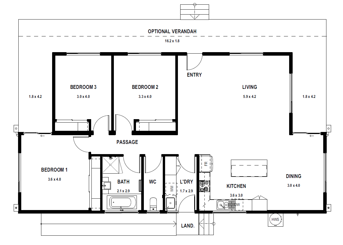
Bedrooms
3
Bathrooms
1
Area
122.7sqm
Dimensions
16.2 X 8.2
The Avoca 12 is a cozy three-bedroom dwelling that perfectly caters to small families, couples, or retirees. Its charming exterior and optional wraparound porch and French doors evoke a timeless aura, harmonising effortlessly with rural surroundings. This home seamlessly merges modern conveniences with classic aesthetics, offering the best of both worlds.
The living area features a raked ceiling that creates a sense of spaciousness and invites abundant natural light to flood the space. Each of the three bedrooms is equipped with a built-in wardrobe, ensuring ample storage for belongings. Designed for convenience, the layout includes a separate toilet and a laundry room with storage space and direct access to the backyard—an ideal nook for storing those muddy boots.
*Please note this floorplan & the windows shown may be subject to changes to align with 7-star energy rating requirements and liveable housing design guidelines*
*Dimensions can vary per facade type. The dimensions provided here are based on our Cubehaus facade.*
