Article
Project Focus: Bespoke Bushland Retreat, Millingandi, NSW
Projects
March 07, 2024
Written by
Alana McNab

At Anchor Homes, we take pride in crafting homes that not only meet our clients' needs but exceed their expectations. On the blog today, we're excited to showcase a new project situated in the tranquil setting of Millingandi, in southern New South Wales.
Our task? To create a stunning 3-bedroom, 2-bathroom modular home nestled in the serene surroundings of bushland. Drawing inspiration from the Avoca 14 floorplan, we worked together with our clients to create a customised, contemporary-style family home that seamlessly integrates with its natural environment.
Sleek Modern Exterior

The exterior showcases a sleek 'Cubehaus' façade, characterised by a striking contrast between Natural Stacked Stone and Fielders Prominence cladding in Colorbond's Monument color. This combination of textures and tones creates a modern aesthetic that compliments the bushland surrounding the home.
Our client requested for a carport to be included in the design rather than a garage as they were mindful of avoiding an overly bulky appearance for the exterior.
In order to achieve compliance with its BAL-29 rating, our clients were tasked with selecting specific upgrades from our extensive range during their specifications appointment for this project.
Enhanced Outdoor Living

Embracing the beauty of the bushland, our clients opted for a wrap-around deck, offering panoramic views of the surrounding scenic hills. This outdoor area serves as the perfect setting for alfresco dining and gatherings with friends and family.
Open Kitchen-Dining Space with View

The open-plan kitchen and dining area, exudes warmth and sophistication. A highlight of the space is the expansive window framing the picturesque view outside, seamlessly blending indoor and outdoor living.

In the kitchen, our client opted for sleek YDL stone countertops in the neutral 'Sahara Sand' shade. Paired with eye-catching splashback tiles and stylish black fixtures, these upgrades really bring a touch of luxury to the space.
Cosy and Spacious Living Area

Situated behind the kitchen, the living area offers a retreat for relaxation and unwinding. Like the dining space, it boasts a large feature window, inviting ample natural light and framing scenic views, making it the perfect place for a reading spot.
The engineered oak timber flooring throughout the home not only adds to its visual charm but also offers several practical advantages over carpet. Unlike carpet, which can trap allergens, hardwood flooring is easier to clean and maintain, making it ideal for families with allergies or pets.
Perfect Relaxation Haven

This modular home design features three generously sized bedrooms, providing ample space for rest and relaxation. The master bedroom, located at the back of the house for extra privacy, features an ensuite bathroom and a walk-in robe. This setup is often a popular layout choice among the clients we work with when designing their new home.
The remaining two bedrooms are strategically separated by a hallway, main bathroom, and laundry room, ensuring each family member enjoys their own private sanctuary. Complete with built-in robes, these bedrooms also offer ample storage space - perfect for growing families.
Bold and Uniquely Designed Bathrooms

When designing the bathrooms for this project, our team embraced the client's vision for distinct styles that reflect their personal taste. The ensuite exudes a unique aesthetic with floor-to-ceiling mosaic-style tiles in bright aqua tones. Complemented by silver fixtures and a simple vanity and basin design, this space radiates a well-balanced bold look.

A walk-in shower and shutter windows offer both functionality and privacy, enhancing the overall look. These additions were deliberately kept simplistic to complement rather than overshadow the striking feature tiling.

In contrast, the main bathroom boasts a warm and inviting atmosphere, featuring large cream-colored tiles and a striking freestanding black bath positioned to offer breathtaking views of the outdoors through the expansive window.

The YDL stone counter benchtop in 'Nero Black' harmonizes effortlessly with the bath, adding contrast and dimension to the space. Complete with a walk-in shower, this bathroom exemplifies luxury and comfort.
The Delivery

Crafted with precision and care, this modular home was built in our Stratford factory and transported to Millingandi, NSW, by our experienced transport team. Consisting of two modules, the home was seamlessly installed on-site, ensuring a smooth and efficient modular construction process.

Attention to detail is paramount in every aspect of our projects, as demonstrated by our careful consideration of cladding types. While some cladding options can be added to the home prior to delivery, more delicate materials, such as the stacked stone (as showcased in this design) are installed on-site to ensure precision and a high-quality result.
At Anchor Homes, we prioritise a seamless experience for our clients, meticulously planning and executing every detail to perfection.
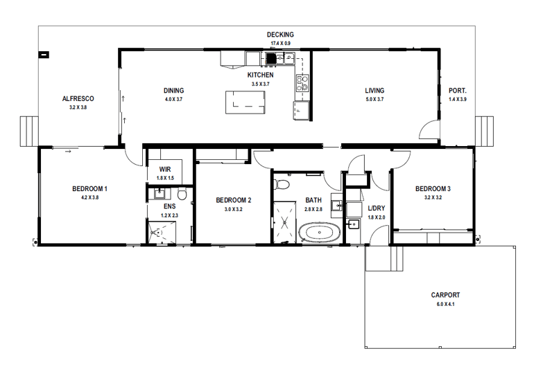
Floorplan

The Millingandi Project Floorplan
Inspired by the Avoca 14 floor plan, this design underwent significant customisation to reflect the unique preferences of our clients. Notable modifications include combining the separate W/C and main bathroom to create a more spacious layout, repositioning the robe in bedroom three to maximise space, and adding an island bench to the kitchen for an open and airy feel.
The Cubehaus façade and optional upgrades, such as a freestanding bath and matte black fixtures, further elevate the home's style and functionality, making it truly one-of-a-kind.
Over to You

If you’re keen to kickstart your new home project, we’d love to help. Talk to our expert team or book a time to visit our display homes and take the first step towards making your dream home happen!
