When it comes to building a new family home, there are certain design features that will enhance the lifestyle of every member of your household.
No matter how large or small your family is, and what stage of life they are at, every family appreciates a home with space, comfort, flexibility and maybe a little luxury too.
To help you achieve this in your new modular home, in this article we’re sharing our top design tips for building a family home that ticks everyone’s boxes.
Flexible layout that suits your lifestyle

First and foremost, choosing a design that is a good match for the make up of your family is a must and this will look different depending on your circumstances. For example, a small and growing family will appreciate a design with an extra bedroom that can double as a playroom or study. Or, if you have older children, a design that has the master bedroom in a separate wing or opposite end of the house to the rest can be a sanity saver, as seen in the Newhaven 19. The two-storey Anglesea modular design takes this to another level, with the entire first floor set up as a parent’s retreat, complete with spacious bedroom, ensuite, walk-in robe, living area and a private deck.
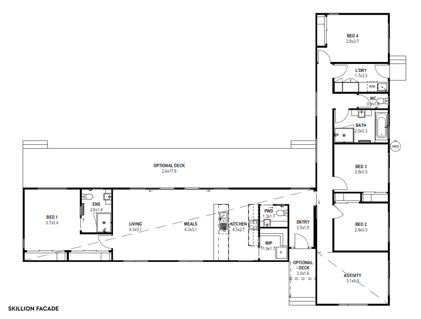
Plenty of space and storage

As every parent knows, you can never have enough liveable space and storage, so choose a design where both these features are maximised. This doesn’t necessarily mean you need to build the largest home you can afford, as there are plenty of mid-size homes that make clever use of their space.
An open-plan living area is really a must, and a second living space is a definite bonus if your budget allows. When it comes to storage, look for features such as walk-in and built-in robes, a walk-in or butler’s pantry, and plenty of cupboard space in the kitchen and laundry. The Flinders 17 is a great option, as it includes plenty of storage, a large open living area and a second activity room that can be set up to suit your needs.
Durable, low-maintenance features

It goes without saying that a family home should include features that are durable, easy to clean and low-maintenance – but the good news is this doesn’t mean you have to compromise on style. There are some great options within the standard inclusions such as vinyl plank flooring that is stylish, functional and long-lasting. It’s also smart to go for colours and finishes that won’t show up every mark and finger print, especially if you have young children.
If you do wish to add luxury upgrades, focus on areas that are less likely to suffer from wear and tear, such as lighting which is out of reach.
Outdoor living space is essential

Some of the best family moments come from quality time spent outside, so make sure your new home has a great connection and flow between indoors and out. A popular and effective way to achieve this is through the addition of a deck or alfresco with easy access to the indoor living space. This can be seen in many of our completed homes, including the Buxton, Rye and Patonga Beach projects. The Sorrento design includes an undercover outdoor alfresco as standard, providing you with a beautiful outdoor space that can be enjoyed year-round, in any weather.
Create the Perfect Home for Your Family
When you build a new home for your family, choosing the right design is so important, so spend some time identifying the features that matter to you. Is a parent’s retreat a priority? Does outdoor living top the list? Or, do you need a design that is flexible enough to grow and adapt as your family’s needs change?
By understanding what your family needs most, you are better equipped to choose the right design. And if you are struggling to find a home that’s just right, you can always customise a design to suit, or even work with our team to create your own dream home from scratch.
Over to You
Do you have a question about our designs or features? We’d love to hear from you! Simply post a comment below or contact us on 03 5145 7110.
