This week in our popular Design Focus series we’re looking at the 3+1 bedroom Sorrento modular home design.
The Sorrento is a generously sized modular home design that’s ideal as a family residence. Its main points of difference are its spacious design, alfresco area included as standard, and a home theatre.
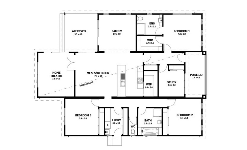
Bedrooms
The Sorrento has three separate bedrooms at three corners of the home for added privacy. A fourth, smaller bedroom close to the entrance doubles as a study. The master bedroom has a walk in wardrobe and ensuite for a touch of luxury.
Bathroom, Laundry & Toilets
This design has a standalone toilet and bathroom between the second and third bedrooms. The bathroom comes complete with a bath for soaking in after a long day at work. The laundry provides an exit to the side of the home.
Kitchen, Living & Dining
An open plan kitchen adjoins the large dining area, with an island bench providing a natural divide while providing more working space for the chef in the family. The walk in pantry is 3.6m2, giving you lots of kitchen storage.


Family Room & Home Theatre
The Sorrento has a separate family room for added room to move, as well as a standalone home theatre at the rear of the home.
There’s the option during the design phase to remove the wall between the theatre and the meals area (as in the below example), in cases where you’d like an even larger open plan area, or have no need for a home theatre area.



Exterior
The large al fresco area shown in the top left of the floorplan is great for entertaining and is accessible from the family room as well as the open plan meals area.
A portico similar to that found in our Shoreham design extends the width of the front door area, providing a cosy recessed area for added shelter from the elements, or for relaxing in the shade in a deck chair on a warm summer’s day.
The cladding of the Sorrento is a combination of Colorbond and hard wearing weatherboard. Other options are available, as can be evidenced in our recent customised Sorrento project in Somerville, Victoria.
The Somerville project demonstrates how a very different exterior appearance can be achieved using a different façade option.(Please note the interior photos shown here are from that custom project so may differ slightly from the floorplans shown here.)
Other Notable Features
- The raked ceiling running diagonally through the home from front door to the back of the home provides additional height and gives the home a roomy feel not found in homes with standard ceiling heights.
- The raked ceilings mentioned above allow for highlight windows throughout the home’s central module, providing more surface area and height to the windows, and hence allowing in more natural light.
- Unlike many of our other modular home designs, the al fresco area is included in the Sorrento’s base price of $233,630 (at the time of writing).
Final Word
The Sorrento design is ideal for a growing family. Its contemporary design, high raked ceilings, and dedicated home theatre and family room make the Sorrento a home with a feature list often only found in more expensive homes.
