
This week our Design Focus blog series takes a closer look at the Tambo 3-bedroom home. The Tambo packs a lot of features into its medium size, and it’s a popular choice for small families looking for a stylish, yet cosy home.
It also makes an ideal holiday house, with a design that allows you to take full advantage of the surrounding views and outdoor space.

Exterior

The Tambo is shown here with the popular Cubehaus façade. The cladding is hard-wearing and attractive Weathertex, which adds to the modern look and feel of the home.
Most clients opt to include the large front deck upgrade, and bi-fold doors, which gives the living area and main bedroom direct access to the outdoors, creating a sense of space and a relaxed and ambient vibe.
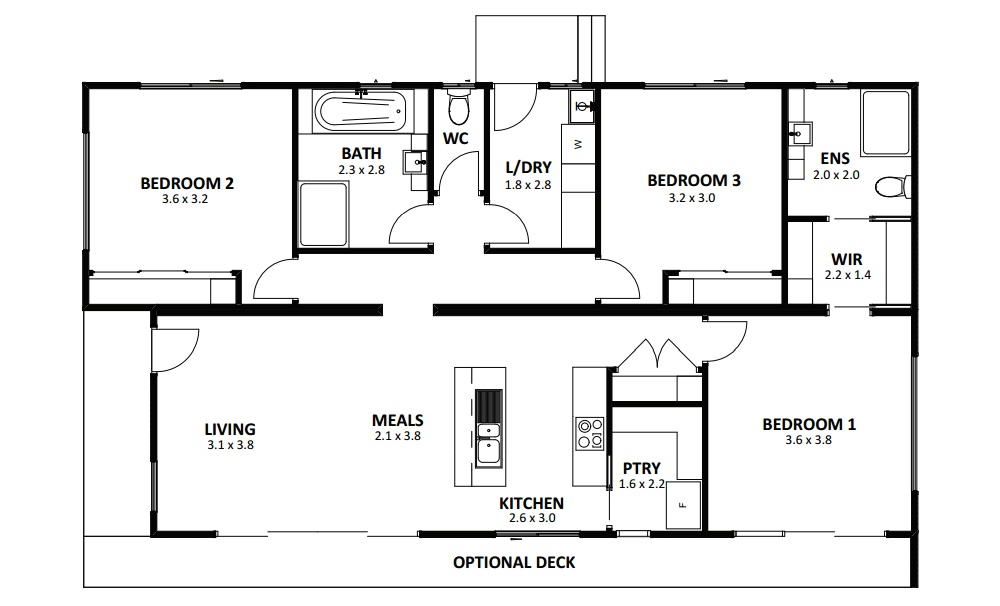
The Tambo’s front door is situated on the side of the house, which means the design works well on both wide and narrow frontage blocks.
Kitchen, Living & Meals

The heart of the home is the open-plan kitchen that overlooks the cosy meals and living area. The kitchen is cleverly designed to maximise space, and boasts an island bench and a generous walk in pantry which stores all your essentials.
Plus, when you include the optional upgrades of bi-fold doors and deck as shown in the photos, the whole area can be opened up, merging your outdoor and indoor space and creating a place that’s perfect for leisurely family brunches or evening drinks with friends.
Bedrooms
The Tambo has three good-sized bedrooms, so it’s a great option for small families or for two couples as a holiday retreat.
The main bedroom features an ensuite with a large shower, and a walk-in robe, giving you plenty of storage space.
It also opens up onto the optional deck, and the large windows maximise natural light or you can opt for sliding doors to bring the outdoors in.
Bedrooms 2 and 3 are set back off the living area and both have easy access to the main bathroom and toilet and include built-in robes.
Bathrooms, Toilet & Laundry
Both the main bathroom and ensuite include large 1200mm x 900mm showers, which gives them a luxurious feel.
The main bathroom has a bath and separate toilet, and the laundry is a good size with outside access to the back deck.
Versatile, Stylish and Affordable
If you’re looking for a medium-sized home with a bunch of stylish and useful features, the Tambo ticks all the boxes.
Priced below $200,000 – just $183,410 at the time of publishing – it’s an affordable and versatile modular home.
If you like the design, but need something a little bigger, take a look at the Tambo 15 design, which has an extra bedroom/ study and a larger living and meals area.
Over to You
If you’d like to know more about the Tambo, or any of our modular home range, post a question below or get in touch with our team for some friendly advice.
