Article
Explore 3 New Custom Prefab Modular Home Designs (Part II) | Anchor Homes Projects
Modular designs
October 24, 2025
Written by
Alana McNab

At Anchor Homes, every custom home begins with collaboration. Our clients work closely with our in-house architect to create a design from scratch that is both functional and visually refined. From challenging sites to unique facades and personalised layouts, every detail is carefully crafted to reflect your vision and lifestyle.
Following Part I of our showcase, we’re now sharing three more custom modular projects this week for Part II. Each home highlights our design expertise, commitment to thoughtful solutions, and the versatility of modular construction:
• Montrose, VIC – a spacious family home nestled at the base of the Dandenong Ranges.
• Mardan, VIC – a sleek, contemporary rural home with sweeping Gippsland hillside views.
• Dinner Plain, VIC – a unique chalet-style home designed for alpine living.
Let’s explore the design and detail behind each of these projects...
1. The Montrose Project, VIC
Bedrooms: 4 • Bathrooms: 2 • Area: 269.2sqm
Currently under construction at our manufacturing facility, The Montrose Project is a sophisticated family home that balances form and function with precision. Designed in collaboration with our in-house architect, this knock-down rebuild project demonstrates how modular construction can adapt seamlessly to sloping sites.
Due to the sloping block, the home incorporates a mix of elevation methods, including steel piers and retaining walls, to achieve both structural integrity and aesthetic balance. The right side of the home is elevated on steel piers, creating space for a garage beneath the front of the home at basement level, while the left side is supported by retaining walls for a grounded and harmonious connection to the site.
The exterior features a mix of horizontal and vertical cladding in Colorbond ‘Monument’, creating a moody and refined palette that complements the Cubehaus façade. Architectural window shrouds add depth and definition to the front elevation, reinforcing the home’s contemporary edge.
Inside, our clients have selected a soft, organic interior palette that reflects the leafy surrounds of Montrose.

The home’s H-shaped design separates the private and social zones across two wings. The main wing includes the primary suite, ensuite, study, kitchen, dining, and living areas, while the second wing accommodates three bedrooms, a bathroom, laundry, and a lounge. This considered layout enhances privacy and minimises noise transfer between the wings.
This project is a perfect example of how modular design can combine thoughtful architecture with site-responsive solutions.
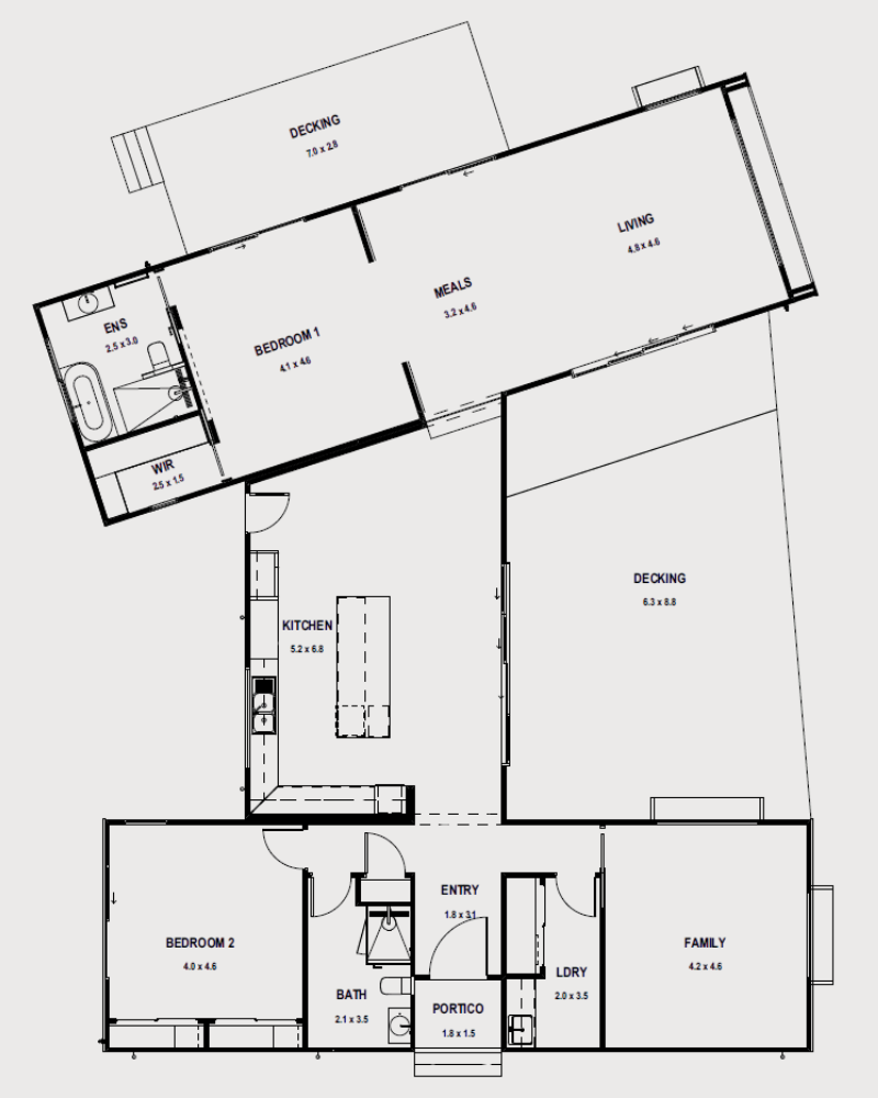
2. The Mardan Project, VIC
• Bedrooms: 2 • Bathrooms: 2 • Area: 181.5sqm
Set in the Gippsland countryside, this completed custom home blends modern form with rural tranquility. Designed around an H-shaped layout, the plan features a unique twist, with one of the outer modules angled outward to create a dynamic architectural expression and enhance the sense of openness.
The façade composition showcases three distinct rooflines: one module with a gable roof, another with a skillion roof, and a cubehaus centre module connecting the two. This deliberate contrast in forms brings visual interest and individuality to the home’s appearance, while maintaining a cohesive overall design.
The cladding selections reinforce this balance of character and cohesion. The gable module features vertical Colorbond Nailstrip cladding in 'Monument', the skillion module showcases vertically oriented architectural panel cladding in the same tone, and the central connecting module introduces a feature of spotted gum timber cladding. This considered mix of materials softens the strong lines of the façade while grounding the home in its natural surroundings.

Large sliding doors connect both the kitchen and living spaces to a generous outdoor deck, creating an effortless transition between inside and out. The home’s orientation and expansive glazing ensure uninterrupted views of the rolling hills, with the large gable window in the living area framing the landscape as a key design feature.
The Mardan Project reflects our commitment to designing modular homes that feel bespoke to their environment.
3. The Dinner Plain Project, VIC
• Bedrooms: 3 • Bathrooms: 3 • Area: 171.3sqm
Located in Dinner Plain, Victoria’s youngest alpine village, this custom double-storey modular home blends effortlessly into its snow-dusted surroundings. With strict design guidelines in the area, our experience in delivering high-quality homes within the alpine aesthetic was invaluable.
This home features a classic gable roofline, not only as a design signature of the region but also as a practical solution for snow fall . The exterior combines horizontal weatherboard cladding in ‘Wallaby’, Colorbond Nailstrip cladding in ‘Woodland Grey’, feature granite stonework, and rustic blackbutt timber posts at the entry. The combination creates a harmonious balance of texture, tone, and warmth, which is respectful of the village character yet distinctly modern in execution.
Inside, the interiors are bright, cosy, and refined, designed for both comfort and style. A neutral colour palette provides versatility, while thoughtful touches like the reading nook window in the living area offer an inviting space to unwind beside the fireplace and take in the snow-covered views.

With three bedrooms and three bathrooms, the home is perfect for hosting friends and family. A dedicated mudroom provides essential practicality for alpine living, while the overall design remains considered, contemporary, and built to endure the elements.
How We Bring Custom Modular Homes to Life
At Anchor Homes, we design and deliver a diverse range of custom modular homes every year, each thoughtfully created to suit the site, lifestyle, and vision of its owner.
Our in-house architect and design team collaborate with you to shape a home that reflects your ideas and priorities. Once the design is finalised, our construction team begin building your home within our controlled manufacturing facility.
With design and construction working hand in hand, every project benefits from clear communication, consistent detail, and a seamless process from concept to completion.
Our custom home design expertise includes:
-
Designing for sites with unique shapes, slopes, or constraints
-
Integrating specific design features or spatial requirements
-
Developing completely bespoke homes with distinctive character
Take The First Step...
These three projects demonstrate the incredible flexibility and design potential of custom modular homes. Whether your site is challenging, your design needs are unique, or you simply want a home that reflects your personal style, Anchor Homes can make your vision a reality.
If you’re interested in building a custom modular home, contact us today. Our friendly team is ready to hear your ideas and guide you through the process of creating your future home.









