At Anchor Homes, we’re excited to reveal our new visuals for the Portsea design range of prefab modular homes. For the first time, each design can be viewed with all available façade styles, giving you a clear look at the architectural character and proportions of every option, including Modern Gable, Skillion and Cubehaus.
The Portsea range has long been admired for its balanced layouts, refined detailing and timeless simplicity. These updated visuals highlight those strengths more clearly than ever, making it easier to see how each design can evolve through materials, colour and façade choice.
Let’s take a closer look at the first design in the range...
Portsea 12


.gif?width=864&height=576&name=ezgif.com-animated-gif-maker%20(36).gif)

• Bedrooms: 2 • Bathrooms: 1 • Area: 121.8sqm • Dimensions: 17m x 11.5m
The Portsea 12 is designed around simplicity and flow. Its compact footprint is carefully arranged to create openness where it matters most, supported by generous glazing options that invite natural light and the ability to capture outdoor views.

In the new visuals, you’ll see how each façade can completely transform its look. The Cubehaus version feels crisp and modern, the Skillion introduces a sense of movement and height, and the Modern Gable creates a sleek barn-style look with it's symmetrical roofline.
Portsea 14


.gif?width=1667&height=1111&name=ezgif.com-animated-gif-maker%20(37).gif)

• Bedrooms: 3 • Bathrooms: 2 • Area: 138.1sqm • Dimensions: 17m x 11.5m
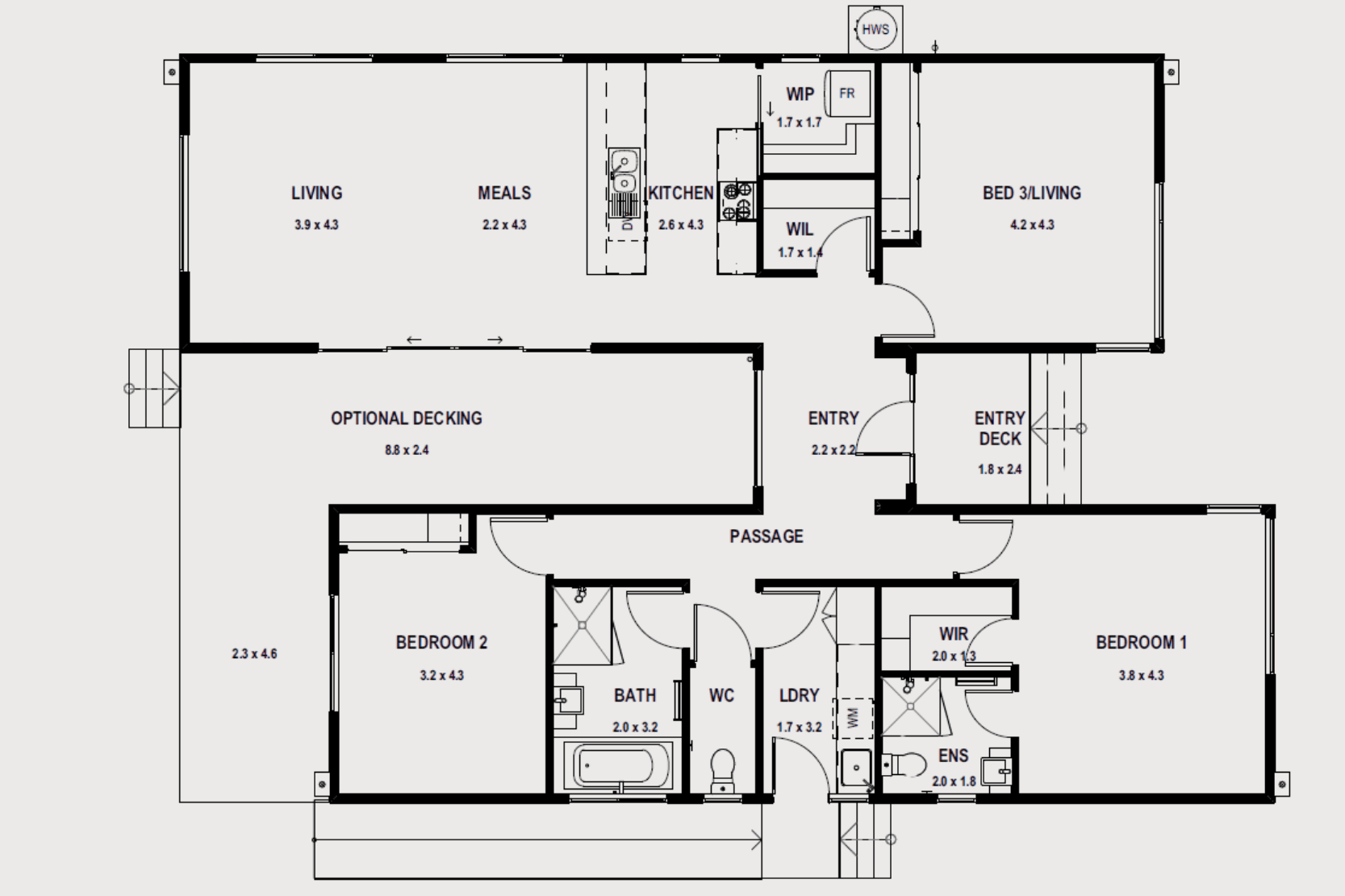
The Portsea 14 builds on the strengths of the Portsea 12 with a little more room to breathe. The H-shape layout is perfect for creating two wings, providing privacy between the master bedroom and the other bedrooms. The optional decking area is a great option for outdoor entertaining where you walkout from the open plan living area to enjoy and indoor-outdoor feel.
With the new visuals, it’s easy to see how façade choice shapes the personality of the home. The gable feels timeless and elegant, the skillion introduces a bold architectural edge, and the cube-inspired façade gives the design a streamlined, minimalist presence.

Portsea 16


.gif?width=1667&height=1111&name=ezgif.com-animated-gif-maker%20(38).gif)

• Bedrooms: 4 • Bathrooms: 2 • Area: 161.9sqm • Dimensions: 20.3m x 11.5m
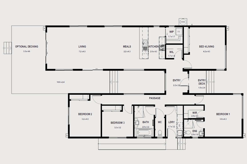
The Portsea 16 is the most spacious design in the range and offers a beautifully balanced layout. Every area feels intentional: the main living zone is bright and generous, the bedrooms feel private and restful, and the internal circulation flows effortlessly from one space to the next.
Because of its size and proportions, the Portsea 16 really highlights how façade style, material selections, and window upgrades can elevate the overall architectural feel—from serene coastal to bold contemporary.

Customisable Options


The new visuals also explore the interior and exterior colour options, materials, finishes, and upgrade pathways available across the Portsea range. From soft coastal palettes to bold contemporary contrasts, the designs now showcase the true depth of what’s possible.
🏠 For more interior inspiration, download our free inspiration guide >

One popular upgrade that consistently stands out in the Portsea range is the addition of gable windows to the Modern Gable façade. These windows dramatically enhance the home’s presence, adding height, detail, and beautiful natural light to the interior.
Because gable windows increase glazing area, achieving 7-star energy rating compliance may require additional adjustments. This can include upgraded improved insulation, window glazing, or enhanced shading (to balance the extra sunlight and heat transfer). Our expert design team will be able to advise you on the best pathway to maintain both energy performance and the striking architectural look you’re aiming for.
Portsea 16 Project – Clifton Springs

A wonderful example of the Portsea range brought to life is the Clifton Springs Project, which is based on a modified Portsea 16 design. This home showcases how the Portsea layout can evolve to suit site conditions, design preferences, and material selections.
With thoughtful adjustments and a beautifully cohesive palette, the Clifton Springs home demonstrates just how refined and versatile the Portsea series can be.
🎥 Watch a video walk through of this project >
Love the Portsea Design Range?
If the Portsea range aligns with your design vision, we’d love to help you explore the possibilities. Whether you’re refining façade choices, considering window upgrades, or ready to begin your design journey, our team is here to guide you every step of the way.
Contact our experienced team to take the first steps to building your new modular home today!
