Whether you’re running out of space as the family grows, or are looking to upgrade to your second home that ticks more of your boxes, upsizing is an exciting prospect. Having lived in your first home you now have a clearer picture of what you want (and what you don’t) and this insight is key to building a modular home that you will love for years to come.
However, even with a clear image in your mind and an extensive list of priorities, making the final call on your new home design can be challenging—there are just so many designs to choose from! So to help you find the home that is ‘just right’ for you, we’re highlighting 3 of our most popular modular designs for families looking to upsize.
Hampton 16
Yarck project – Hampton 16
If you’re looking for a stylish, modern home that’s spacious but not excessive, the Hampton 16 is a design you should consider. With three bedrooms and an expansive living zone, it’s easy to see why this is one of our most popular floor plans.
Yarck project – Hampton 16
As illustrated in our recent Yarck project, this design has it all, without the need for additional modifications or tweaks. The cubehaus façade gives the home a modern look, while also adding height and space thanks to the 2700 ceiling. The large picture windows allow natural light to flow into every room, and the optional deck creates even more space to relax, entertain or chill out with family and friends. The master bedroom is positioned for privacy and includes an ensuite and walk-in robe, while the laundry, walk-in pantry and additional standalone toilet are all welcome features that add space and convenience to the design.
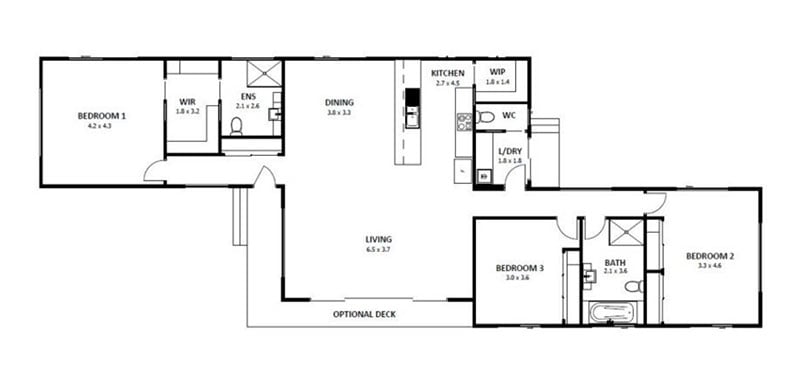
Hampton 16 floor plan
Dimensions and area: 24.9m x 9.3m/ 150.0m2
Standard facade and ceiling height: Cubehaus/ 2700 level
Design highlights: Fantastic value, large living zone, smart design for growing families.
For current pricing and inclusions, download our pricing guide.
Shoreham 19
Rye 4-bedroom project – Shoreham 19
If you’re looking to upsize to a feature-packed 4-bedroom home with two living areas and everything a modern family could need, the Shoreham 19 is a great choice. The bedrooms all include built-in storage, with the master featuring a walk-in robe and ensuite. Bedroom 4 is also nicely positioned at the rear of the home, making it ideal as a study or home office, which is fast becoming a must-have and is a great value-add inclusion in your new home.
Rye 4-bedroom project – Shoreham 19
In our four-bedroom Rye project, this design has been presented beautifully, with the stylish kitchen a highlight. Our clients also chose to upgrade to the cubehaus façade, which adds extra ceiling height and plenty of class. The large living space opens out to the deck for easy outdoor dining and entertaining, and the extra separate lounge provides you with a versatile space that can be used for a playroom, teenagers’ retreat or games room to suit your family’s age and stage of life.
Shoreham 19 floor plan
Dimensions and area: 21.0m x 9.05m/ 175.8m2
Standard facade and ceiling height: Split skillion/ Raked
Design highlights: Second living space, option for office, large optional deck.
For current pricing and inclusions, download our pricing guide.
Barwon

Daylesford project – Barwon
One of our largest and most impressive designs, the Barwon makes a statement wherever you build. The cubehaus façade adds a modern style that gives the two-story design an abundance of street appeal, whether it sits in a coastal, urban or rural environment, as seen in our Daylesford project.

Daylesford project – Barwon
The lower floor features ample living space, including a theatre room and deck. You also have the option of adding a double garage which provides protection for your cars and extra storage for bikes, tools and camping gear. Upstairs you’ll find all four bedrooms, the family bathroom, plus a study. The luxurious master bedroom features an ensuite, walk-in robe and private elevated deck.

Barwon floor plan
Dimensions and area: 19.6m x 9.0m/ 244.0m2
Standard facade and ceiling height: Cubehaus/ 2700 level
Design highlights: Two-storey, luxury design, lots of options to customise.
For current pricing and inclusions, download our pricing guide.
Upsize right and you’ll never look back
Upsizing to your next home is a big decision which can be life-changing, especially if your existing home feels like it’s bursting at the seams. With some careful planning and research you can build a home that is the perfect long-term fit—and you’ll never look back!
Over to you
We help families across Victoria and NSW upsize to their new dream home—so if you’re ready to take the first steps and would like to discuss your ideas, please get in touch with our team on 1300 946 815 or post a comment below.
