Nestled in the serene bushland of Bald Hills, just north of Eden, NSW, is a stylish modular home expertly designed and built by our team to complement the natural surroundings of the block.
Our clients had a vision for a modern, low-maintenance modular home that exuded a sense of space and light, while also accommodating their specific site restrictions and personal preferences.
Guided by this vision, we successfully brought to life a 3-bedroom custom modular home design that seamlessly integrates with the natural landscape and caters to the unique needs of their family.
Customised Façade Fusion

Choosing to deviate from our standard floorplans, they opted for a custom design that blended two façade options together.
They selected the modern Cubehaus façade for the module containing all three bedrooms and a Skillion façade for the living and kitchen module. This personalised design choice showcases the flexibility and adaptability we have when building custom modular homes for our clients.

The resilient Weathertex cladding chosen not only adds durability to the exterior but also adds character. The distinctive horizontal feature at the entry introduces distinctive charm, while the vertical cladding on the remainder of the exterior imparts height and an additional layer of aesthetic appeal.
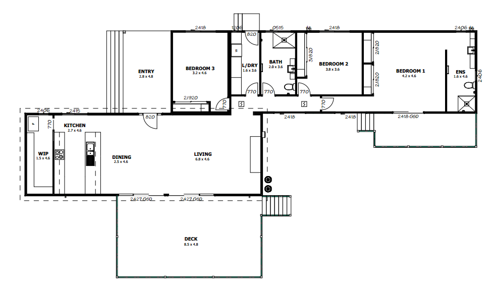
A Tailored Floorplan

The Eden Project Floorplan
Recognising the importance of harmonising with the natural surroundings, the internal layout was customised to suit the block’s characteristics. The kitchen and living area were strategically relocated to the opposite side, allowing the front door to face the southeast and align with the driveway.
This thoughtful adjustment ensures a seamless integration of the home with its environment, whilst also enhancing functionality.
Modern Design Features

The heart of this home lies in its 9-foot ceilings, a hallmark feature of the design that contributes to a modern and airy ambience. The strategically placed windows flood the interiors with natural light, effortlessly showcasing the breathtaking views of the surrounding landscape.

In the kitchen, our client chose to add stylish contemporary upgrades such as the tiled backsplash, spring sink mixer and waterfall island benchtop.
In addition, optional pendant light fittings were added for stylish flair as well as a walk-in pantry for extra storage space - a must-have in any family home!
Relaxing Outdoor Retreat
The living area's dual-access sliding doors open up to the expansive deck, providing a panoramic view of the surrounding landscape.
This picturesque setting creates a sense of calm and tranquillity, offering the perfect backdrop for our clients to unwind.
Spacious Bedrooms and Bathrooms
The large master bedroom, complete with an ensuite and sliding doors opening to an outdoor deck, provides a seamless connection between indoor comfort and the surrounding environment.
The adjoining bathroom enhances the modern living experience with its spacious layout, featuring a tiled shower base and a convenient walk-in shower.
This well-appointed space combines functionality and contemporary design for a harmonious retreat within the home.
Over to You
If you find inspiration in the Eden project and are interested in building your own modular home, contact our experienced team today or arrange a visit to one of our display home locations.
