Article
Project Focus: Off-Grid Barn Style Prefab Modular Home, Gippsland VIC
Projects
March 27, 2026
Written by
Alana McNab
Design: Newhaven 21 (Modified) • Bed: 3 • Bath: 2 • Modules: 3 • Area: 207sqm
Set among the rolling hills of South Gippsland, The Arawata Project is a striking barn-style home that makes an immediate impression. Designed and built by Anchor Homes, this prefab modular project combines refined minimalism, organic materiality, and sweeping rural views to create a modern countryside haven.
Brought to life in close collaboration with our clients, this project showcases not only a beautiful home, but also a building journey that was positive from start to finish:
"If someone asks us if they wanted to build with Anchor, we would definitely recommend them.” - Arawata Project Clients
The Modular Design Brief
For the clients behind this project, the move to Arawata was about far more than changing address.
After living in inner-city Melbourne for several years, they were ready for a completely different pace of life. They envisioned a home where they could grow their own produce, become part of a close-knit local community, and enjoy the calm that comes with regional living.
Their journey began with plans prepared by an independent architect. But when post-COVID construction costs escalated, the prospect of building that original design through a traditional build pathway became challenging.
“...We found the architect and the cost of building that [original] house just went sky high, and that’s when we pivoted to Anchor Homes at the suggestion of a friend.” - Arawata Project Clients
They began exploring alternative builders that could still honour the essence of their original vision, while offering a more efficient and practical way to build in a rural location. After a friend recommended Anchor Homes, they were introduced to our modular building approach and saw the potential for a solution that could suit both their site and their design goals.
Our team reviewed the original plans and identified an opportunity to reinterpret them through our modular home design approach. The concept aligned closely with our Newhaven 21 design, so we used that as the basis for a tailored solution. From there, we refined the proportions and spatial arrangement to retain the key architectural intent of the original concept while adapting it for our prefab construction methodology.
The result is a home that feels highly customised while also delivering the efficiencies and certainty that many clients value when working with an experienced custom home builder. As the clients reflect...
“The timeline was exactly what we had been told… and to see a house come through that quickly is just unbelievable.” - Arawata Project Clients
Modern Barn Style Home Exterior
The exterior of The Arawata Project is defined by our Modern Gable façade.
Clean lines, refined detailing and strong geometry work together to emphasise the pitched roof, giving the home its distinctive barn style home design character. This is an exterior style that feels especially at home in expansive rural landscapes.
Wrapped in Colorbond® steel cladding and roofing in Monument, the home has a bold presence that allows it to sit confidently within its exposed hillside setting. This cladding choice is not only visually striking, but also highly practical for rural conditions. In open sites subject to changing weather, steel cladding offers exceptional durability, strength and weather resistance, making it a smart and enduring choice for this type of location.
Extensive glazing plays a major role in the home’s architectural identity. Large windows have been positioned throughout to frame the surrounding countryside, while oversized gable windows at both ends of the home maximise natural light and create a bright, airy atmosphere internally.
The result is an exterior that feels both robust and refined, a contemporary prefab home design that responds beautifully to the landscape while delivering a premium finish.
Interior Design
Inside, this home continues its design story through a calm and highly resolved interior palette.
This architectural prefab home features three bedrooms and two bathrooms, with each space designed to feel generous, warm and visually cohesive.
The material selection is central to that experience. Natural walnut timber tones are paired with light grey stone textures, stainless steel elements and brushed nickel fixtures from ABI Interiors, creating a soft contrast that feels contemporary without being stark. Together, these finishes establish an organic minimalist aesthetic that complements the surrounding environment and enhances the home’s premium feel.
The furnishings follow the same philosophy. Rather than filling the rooms, the interior styling takes a restrained approach, allowing beautifully selected, high-quality statement pieces to stand on their own. The spacious layout means furniture is intentionally spaced, creating a sense of openness and visual calm. This gives the home an elevated quality while still feeling comfortable and liveable.
A standout feature within the main living zone is the freestanding fireplace, installed by the clients after handover. Positioned centrally within the open-plan space, it acts as a sculptural focal point between the living and kitchen areas. Beyond its practical warmth, it enhances the ambience of the room and adds another layer of architectural character to the interior.
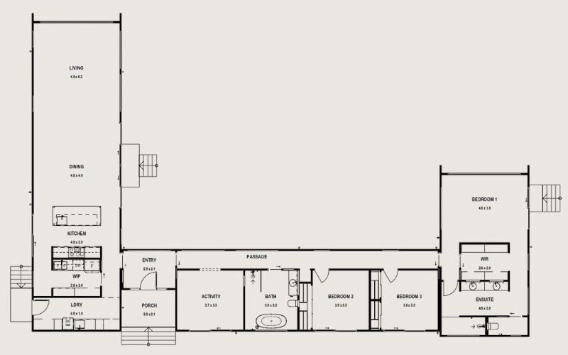
Floorplan & Design Modifications
This project began as a modified version of our Newhaven 21 design, carefully adapted to suit the clients’ site, lifestyle and design priorities.
Its U-shaped modular home design forms the foundation of the layout, an arrangement that is particularly effective for capturing views from multiple directions while also creating separation between shared and private zones.
Our clients explain in the video that “Anchor actually took a design that we had and was able to take it on board, take one of the existing designs and modify it for us.” This flexibility is one of the key strengths of a well-considered custom home design process, especially when paired with modular construction.
Some of the key floorplan modifications included:
• Relocating the open-plan living zone to the western module, where the kitchen, dining and living spaces now take full advantage of the surrounding views.
• Repositioning the bedrooms and bathrooms into the central and eastern modules to create a clearer separation between living and private spaces.
• Moving the passageway from the western module into the central module, where it now creates a memorable architectural transition space looking directly out to the rolling hills.
• Shifting the activity room from the eastern module into the central module, which extended this part of the home and allowed more space for the main bedroom suite.
• Expanding the main bedroom, walk-in robe and ensuite to create a more airy, spacious and luxurious space.
• Designing a dual-entry ensuite, accessed from either side of the bed, which allowed for a generous double-basin vanity area and separate shower and WC spaces positioned more privately to the rear.
• Transforming the walk-in pantry from an enclosed room into a walk-through pantry behind the kitchen, improving both functionality and flow.
• Concealing the laundry behind the pantry, keeping utility spaces neatly concealed and away from the quieter bedroom zones.
• Additional windows and upgraded insulation, with more natural light throughout the home and enhanced comfort across the seasons.
For the clients, the final result exceeded expectations: “I did not expect to be able to have a home that has the look and feel of what we originally had wanted.” It is a powerful example of how a tailored prefab modular home can still achieve the same individuality, warmth and architectural quality as a fully custom residence.
Off Grid and Wind Rating Considerations
This home was shaped not only by design ambition, but also by the practical realities of its site.
The finished home is an off grid home, an important outcome for the clients due to the property’s rural location and distance from existing service connections.
For the owners, this was also part of a broader lifestyle goal, creating a home that aligned with a more self-sufficient and intentional way of living. In that sense, the project reflects many of the values associated with sustainable home design, including careful site response, a strong connection to environment, and a way of living that is more attuned to place.
The block was also classified with a wind rating of N3, a moderate-to-high non-cyclonic classification often associated with exposed rural sites like this one. This required careful consideration during the pre-construction phase, particularly in relation to structural engineering, bracing requirements, and the specification of suitable windows and external doors capable of performing under the design wind pressures for the site. In conditions like these, durable external materials and a robust building envelope are especially important.
Positioned on top of a hillside, the home was intentionally sited to take in expansive views from multiple vantage points. That connection to landscape became a defining part of the design. Whether standing in the central passageway, sitting in the living room, or waking in the main bedroom as weather moves across the hills, the home is constantly engaging with its surroundings.
Interested In Building A Prefab Modular Home?
This project is a strong example of how prefab home design can be both highly practical and deeply architectural.
From its bold barn style home design and organic, minimalist interiors to its carefully modified floorplan and commanding hillside position, every part of this home has been shaped by lifestyle, landscape and thoughtful design resolution.
It also demonstrates the flexibility of working with an experienced custom home builder. Whether starting with one of our existing modular designs or bringing plans that need to be reviewed and adapted for modular construction, there is real opportunity to create a home that feels tailored, premium and true to your original vision.
If you’re considering an architectural prefab home, an off grid home, or a custom home design for a rural or regional site, we’d love to hear from you. Make a project enquiry with Anchor Homes to explore how we can help bring your ideas to life.















