Have you ever dreamed of having a peaceful retreat that combines modern style with the beauty of the countryside? Well, that was our client’s vision when designing their new modular home for their block in Taradale, Victoria.
This modified Hampton 16 design features open-plan living, a walk-in pantry, a freestanding bath, and a secluded primary bedroom with a private ensuite. Tailored to our client’s rural lifestyle, this home blends effortlessly with the surrounding landscape.
Continue reading to discover the key features of this home and explore it for yourself.
Eye-catching Exterior
/Compressed%20images/SDH_230210_0392web%20(1).jpg?width=800&height=533&name=SDH_230210_0392web%20(1).jpg)
First impressions are vital in home design and this home is a perfect example. The Lysaght Custom Orb® in Monument (BAL-40 rated exterior cladding) creates a striking contrast against the tussock, complemented with hardwood timber window frames, Merbau wrap-around decking, and the front door in Symphony Red.
The structured lines of the exterior facade stand out from the surrounding trees, creating a stunning silhouette against the warm light of sunset.
Contemporary Kitchen and Living Area
The kitchen feels warm and relaxing, with a palette of sleek black, hardwood timber, and warm white. The Caesarstone Airy Concrete benchtop adds a subtle texture, accented with matte black handles, tapware, and a double sink. To reflect light, the splashback showcases National Tiles Lingotti Bianco Matt.
/Compressed%20images/SDH_230210_0381web.jpg?width=800&height=533&name=SDH_230210_0381web.jpg)
On the floors, Spotted Gum hardwood timber flooring provides a hint of character and sets the foundation for the rest of the open-plan living area.
Relaxing Bedroom Retreats
/Compressed%20images/SDH_230210_0357web.jpg?width=800&height=533&name=SDH_230210_0357web.jpg)
Each bedroom has been designed to create a cosy haven. The master bedroom, with its own ensuite bathroom, is a private oasis perfect for relaxation. The other bedrooms offer versatile spaces, where one acts as a study space, and the other a spare bedroom.
The interior design in the master ties in perfectly with the hills outside, pairing a timber headboard, warm white walls, golden yellow drapes, and sky-blue linen. To add softness and comfort, the client chose 100% Wool carpets in the colour, Torino.
Premium Bathrooms with Natural Tones
To ensure the bathrooms felt practical and calming, we used a combination of recycled timber benchtops, Baseline Concrete floor tiles, Liberty Matt White wall tiles, and 800mm LED round mirrors.
The main bathroom walls are painted in Dulux Mangrove Leaf, tying in the green tones of the gum trees outside. The frameless shower screen feels open, allowing a full view of the space.
In the ensuite, the walk-in shower, vertical towel rails, and single-panel shower screen ensure the room feels like a private spa.
Bringing Nature In
The connection to nature extends beyond the four walls. Stepping onto the Merbau deck, you'll instantly feel at one with the outdoors. It's a versatile area where you can unwind, entertain, and soak in the beauty of your surroundings.
/Compressed%20images/SDH_230210_0400web.jpg?width=800&height=533&name=SDH_230210_0400web.jpg)
/Compressed%20images/SDH_230210_7237web.jpg?width=770&height=513&name=SDH_230210_7237web.jpg)
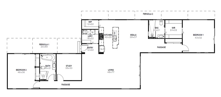
Modified house plan
Taradale Project Floorplan
After selecting our popular Hampton 16 floor plan, our clients expressed their desire to retain and customise certain elements of the design. While the open-plan living area and walk-in pantry from the original floor plan captured their interest, they also had specific modifications in mind.
Notably, they opted to remove the powder room to craft a more inviting entryway, transformed the third bedroom into a flexible study area, added hardwood timber window frames and introduced a wrap-around deck to elevate their outdoor living experience.
/Compressed%20images/SDH_230210_7251web-1.jpg?width=770&height=513&name=SDH_230210_7251web-1.jpg)
Over To You
Are you ready to start your own building project? Our experienced team is here to help. Contact us today or book a visit to our display homes to walk through our modular homes in person.
