Article
Project Focus: Yarra Ranges Retreat, Warburton, VIC
Projects
May 16, 2025
Written by
Alana McNab
At Anchor Homes, we love bringing dream homes to life—and today, we’re thrilled to take you behind the scenes of one of our favourite recent projects: The Warburton Project.
Built for our client Peter, this stunning pref.kand akjsbckq jme is the perfect balance of modern design and natural beauty, right in the heart of Victoria’s picturesque Yarra Ranges.
Project Background: Client Brief
When Peter came to us, he was after a stylish yet relaxed retreat to share with loved ones—something contemporary that embraced the stunning bushland and mountain views of Warburton, Victoria. He chose our four-bedroom, two-bathroom Aspendale modular home design as the base and, with a few thoughtful tweaks, brought his vision to life.
"I loved the planning stage, designing and customising the build to make the home individual to me" - Peter
At Anchor Homes, we work closely with you to create a home that feels uniquely yours—and Peter’s is a perfect example. Set among towering gums with a stunning mountain backdrop, his new retreat strikes the ideal balance of luxury, comfort, and connection to nature.
Exterior: Natural Beauty Meets Modern Design
Design: Aspendale (Modified)
Facade: Modern Gable Facade
The Warburton home features our Aspendale modular home design—elegantly adapted to suit Peter’s vision. Featuring our popular Modern Gable facade, this design is influenced by Scandinavian architecture with clean lines, large feature gable windows, and refined detailing that highlights the dramatic pitched roof forms. The result? A striking and timeless street presence.
For the exterior cladding, we combined Nailstrip cladding in Monument with beautiful Spotted Gum timber features at both the front and rear of the home. These natural materials and muted colours perfectly complement the surrounding landscape, helping the home settle seamlessly into the bush environment.
One standout modification was the addition of feature highlight windows above the sliding doors at the rear—bringing in even more light and visually lifting the space to frame those magnificent mountain views.
To complete the look, we built a matching two-car gable carport, finished in the same stunning colour palette.
Interior: Bold Choices, Seamless Design
Peter's kitchen is a perfect showcase of bold yet refined design—and it’s built for entertaining. The hero of the space is the stunning cabinetry in Polytec’s ‘Topiary’ green, accented with 'Natural Ply' overheads, all tied together with a beautiful Caesarstone 'Intense White' stone benchtop and splashback.
The large island bench with a waterfall edge is an entertainer’s dream—perfect for casual drinks, grazing platters, or simply gathering around while meals are prepared. This kitchen isn't just stylish—it’s highly functional, designed to easily cater for large groups, long lunches, and lively nights with friends, just as Peter had envisioned.
"I have also been very impressed with the quality of the build and it really exceeded my expectations with the craftsmanship and care everyone has put in along the way." - Peter
The living space is designed for connection, comfort, and effortless entertaining. Thanks to the open-plan layout and the expansive gable windows, the kitchen, dining, and living zones flow together beautifully, creating a warm and inviting space for gatherings of all sizes.
The soaring pitched ceiling, Grand Oak Flooring’s ‘European Oak’ timber floors, and the freestanding Coonara wood heater create a homely, relaxed vibe that’s perfect for evenings spent with friends. Whether it’s a cosy winter night by the fire or a sun-soaked afternoon spilling out onto the deck, Peter’s home is all about bringing people together in style.
The main bathroom is a true retreat within a retreat. Featuring floor-to-ceiling tiling, Peter selected a thoughtful combination of National Tiles' Whoosh 'Forest' tiles in a stunning herringbone pattern and Concrete Fusion 'Alloy' tiles for a grounded, modern feel. A freestanding bath, large shower, stylish vanity with round LED mirror, and chrome fittings complete this calming space.
Off-Site Modular Construction
At Anchor Homes, every modular home we create is carefully crafted in one of our off-site prefab construction facilities in Victoria. Building off-site means greater quality control, faster build times, and less impact on your site.
"Having weekly updates during the build getting to see every stage of the build was very exciting and having direct contact with the builder during the construction phase was very reassuring" - Peter
Modular Home Delivery Day
Peter’s home was built in two modules, delivered to his flat site in Warburton by truck. The delivery day was a spectacle in itself—locals watched with curiosity and excitement as the large modules made their way through town. The installation was quick and precise, with the home fitting perfectly into place and ready for finishing touches.
"One word… “amazing”. Of course, the day of delivery was the worst weather day of the year, but the skill and professionalism of the guys was truly something to see. It’s quite something to see it all come together and gives the neighbours quite a shock when a house appears when they arrive home from work!" - Peter
It’s modular magic at its best—efficient, professional, and stunningly seamless.
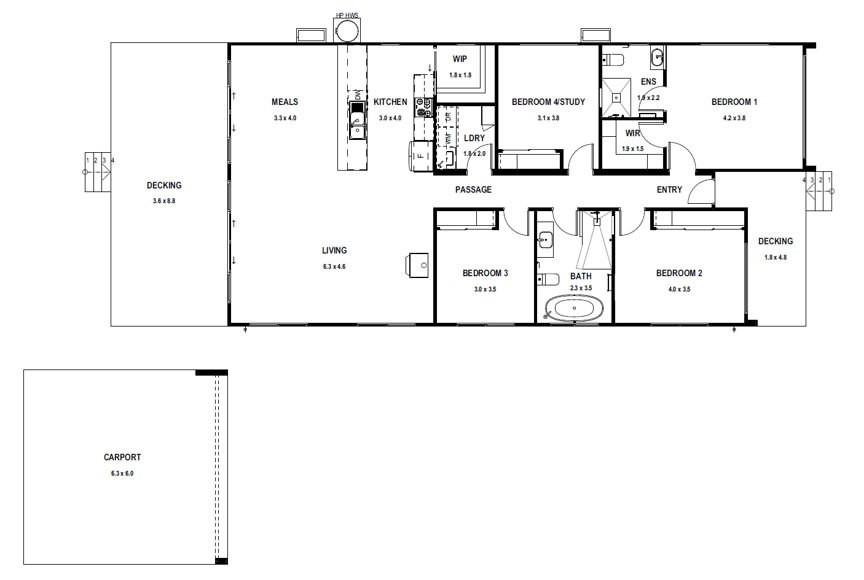
Floorplan + Modifications
The Warburton Project Floorplan
The Aspendale modular floorplan offers the ultimate in family living, with four spacious bedrooms, a central open-plan living hub, and thoughtful zoning to ensure privacy and peace. With the living areas positioned at the rear, it’s easy to create an indoor-outdoor connection with the surrounding landscape—perfect for those who love to entertain or relax in nature.
If you'd like to experience the Aspendale for yourself, you can visit our Aspendale display home in Stratford, Victoria and see its possibilities firsthand!
Top 3 Modifications for Peter’s Home:
-
Additional feature windows at the rear to capture sweeping mountain views
-
Converted the powder room into a laundry, increasing the size of Bedroom 2
-
Upgraded to a large back deck, ideal for entertaining and soaking up the natural beauty
Modular Homes Australia
"The build time being much shorter was very appealing, also the way that I could customise the floorplan really worked for me." - Peter
At Anchor Homes, we design and build high-quality modular homes and are committed to delivering an exceptional customer experience. When you build with us, you’ll have the full support of our expert team—including designers, builders, and project consultants—guiding you every step of the way. To see how it all comes together, view our 10-step modular home building process here.
Over To You
Peter’s Warburton retreat showcases just how personalised and beautiful prefab homes can be when you work with the right team. At Anchor Homes, we’re passionate about bringing your vision to life with stunning modular homes that combine innovative design, seamless construction, and a commitment to quality.
"I believe it’s the future of building [modular homes] and cannot understand why someone would build in the traditional method, when you can have a customised home of better quality, for a lesser price.”- Peter
If you’re dreaming of your own modern retreat, whether in the bush, by the beach, or anywhere in between—we’re ready to make it happen.
Let’s start building your dream today.
%20(19).png?width=864&height=630&name=Untitled%20(1080%20x%20788%20px)%20(19).png)
.png?width=800&height=1000&name=Vertical%20Posts%20(54).png)
.png?width=800&height=1000&name=Vertical%20Posts%20(55).png)
%20(17).png?width=864&height=630&name=Untitled%20(1080%20x%20788%20px)%20(17).png)

%20(20).png?width=864&height=630&name=Untitled%20(1080%20x%20788%20px)%20(20).png)






.gif?width=864&height=630&name=ezgif.com-animated-gif-maker%20(22).gif)
.gif?width=864&height=1024&name=ezgif.com-animated-gif-maker%20(24).gif)

%20(21).png?width=864&height=630&name=Untitled%20(1080%20x%20788%20px)%20(21).png)
