Looking for the perfect design to build your dream home on the coast? This two-bedroom modular home is a stunning example of a luxury compact home and is sure to inspire!
When our clients were looking for a small design without compromise to build a holiday home on their block in Walkerville, a tiny town situated on the picturesque Waratah Bay in Gippsland, the Beaumaris stood out as a perfect fit.
Needing the home to be built to BAL 29, they worked closely with our design team to bring their vision to life. The clean lines and dark tones of the exterior contrast beautifully with the surrounding bushland, and the on-trend interior finishes sparkle inside, elevating the home to something truly special.
Read on to see the highlights and find out more about the Walkerville project. You’ll gather a wealth of ideas to kickstart your own dream home journey!
Light-filled living for a sense of space

In a smaller home, creating a sense of space is important, and the bright colour scheme, large windows and high ceilings combine beautifully to achieve this in the stylish living zone. The flooring is a standout, with our clients opting to upgrade to Karndean Looselay Longboard in Bleached Tasmanian Oak. The lighter colour gives the room an instant lift, creating a fresh Scandi look and feel that is carried throughout the house.

Expansive sliding doors open up to the fresh air and optional deck, providing an effortless flow through to the outdoors and serene natural surroundings beyond. This allows for an easy transition to alfresco dining, a quiet cuppa or a peaceful moment to rest and recharge.
Simple and refined kitchen that shines

Carrying on with the bright, crisp look, the simple yet refined kitchen shines. Gloss white cabinetry contrasts with the matte black fixtures, an on-trend upgrade that adds a luxury modern vibe. Quality Westinghouse appliances keep the home cook happy, while the induction cooktop and sleek rangehood were handpicked upgrades that further enhance the clean lines of the space.

With faster cooking times and easier clean ups, the induction cooktop doesn’t just look good, it is also a real time-saver in the kitchen, while the subtle colour of the tiled splashback allows the matte black fixtures to stand out to great effect. Who knew a simple kitchen sink could look so good!
Bathroom beauty with luxe features

In the bathroom, our clients have again selected luxe features that are both practical and beautiful. Floor to ceiling tiles are a popular upgrade that add value and really lift the space, while the black frame around the walk-in shower screen ties in well with the matte black fixtures. The natural timber of the wall-hung vanity adds warmth and the above counter basin is a stylish addition.
Exterior elegance set amongst nature

Set against the blue skies and greenery, the James Hardie Axon™ Cladding in Monument creates an instant impression, with optional twin Merbau decks connecting the home to the surrounding natural environment. Not only does the cubehaus façade give the home plenty of street appeal, it also allows for 9ft ceilings inside, creating a wonderful sense of space.

Being close to bushland in a bushfire-prone area, the home needed to be built to BAL 29 standards, and our designers worked with our clients to make sure every box was ticked without compromising on style.
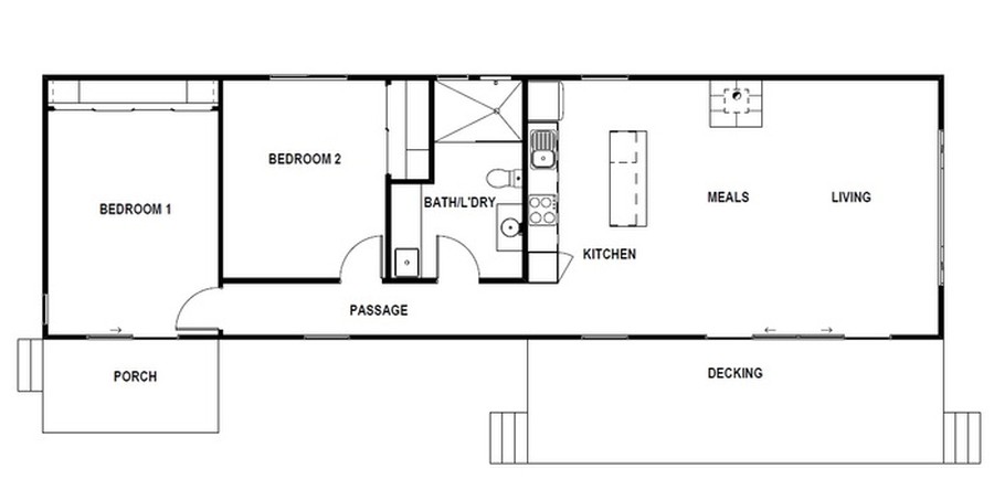
Picture perfect Beaumaris in Walkerville

As you can see from the images and floor plan above, this picture perfect compact Beaumaris has everything you need to enjoy a peaceful coastal lifestyle. For current pricing on the Beaumaris and our other modular designs, download our price list, which includes the base price of our homes. See our standard inclusions for information on what is included, additional upgrades (like those shown in the Walkerville project above) will be priced separately in your quotation.
If you’re keen to kickstart your own new home project, we’d love to help. Talk to our expert team or book a time to visit our display homes, and take the first step towards making your dream home happen!
