Article
Top Australian Prefab Home Builder – 2025 Display Homes Open Now
Design inspiration
July 22, 2025
Written by
Alana McNab
If you're planning a home build in 2025, there's a growing shift toward modular construction — driven by its precision, efficiency, and design flexibility. At Anchor Homes, we’ve been leading this evolution for over 25 years, delivering architectural prefab modular homes that combine contemporary style with enduring quality.
Unlike traditional builds, modular homes are constructed off-site in a controlled environment, then transported and installed on your property. This process reduces building delays, minimises waste, and ensures a consistent high standard of craftsmanship is maintained from start to finish.
To experience the quality of our builds firsthand, visit one of our display centres in Melbourne (Bayswater) or Gippsland (Stratford). Each locations features two carefully curated homes from our modular range.
Melbourne Display Homes - Bayswater
📍 1 Jersey Rd, Bayswater VIC 3153
⏱ Opening Hours
Mon–Tues: By appointment
Wed–Fri: 12pm–5pm
Saturday: 8am–2pm
Sunday: Closed
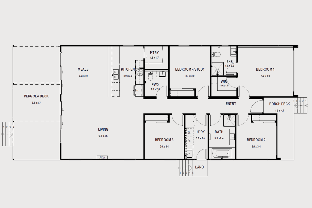
Located in Melbourne’s east, our Bayswater display centre showcases two of our most popular 3- bedroom designs: the Shoreham 14 and the Hampton 14. Both exemplify what’s possible with modular design.
Shoreham 14 Display Home
3 Bed | 2 Bath
The Shoreham 14 offers a smart layout with a strong sense of flow and function. The open-plan living area is bright and welcoming, with the kitchen positioned to keep things practical and connected. Bedrooms are zoned along one side for privacy, with a master suite that includes a walk-in robe and ensuite.
Explore Display Home → Book A Visit →
Shoreham 14: Client Project Inspiration


For inspiration on how the Shoreham 14 can be customised, explore our McKenzie Hill Project. This build was thoughtfully adapted to suit a rural outlook while maintaining a sophisticated, modern finish. Please note: The McKenzie Hill project is a client project and not available for display tours.
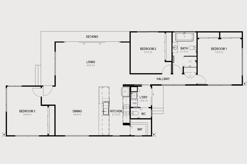
Hampton 14 Display Home
3 Bed | 2 Bath
The Hampton 14 is a well-designed home with a spacious central living area that flows naturally through the space. The kitchen includes a walk-in pantry and plenty of storage, while the three-bedroom layout offers privacy and comfort, with a master suite that includes an ensuite and walk-in robe.
Explore Display Home → Book A Visit →
Hampton 14: Client Project Inspiration


For inspiration on how the Hampton 14 can be customised, explore our Buxton Project. This build was reimagined to suit a picturesque rural setting in the Yarra Valley. Please note: The Buxton project is a client project and not available for display tours.
Gippsland Display Homes – Stratford
📍 55 Industrial Rd, Stratford VIC 3862
⏱ Opening Hours
Mon–Fri: 8am–5pm
Saturday–Sunday: Closed
In regional Victoria, our Stratford display centre offers a closer look at two standout homes: the spacious Aspendale and one of our newest designs, the Avoca 12. Both demonstrate our commitment to thoughtful layouts, quality materials, and refined living — no matter the scale.
Aspendale Display Home
4 Bed | 2 Bath
The Aspendale modular design is an elegant four-bedroom home, with plenty of flexibility to customise the space and style to suit your needs. The living zone is a highlight, located at the rear of the home to provide peace and privacy.
Explore Display Home → Book A Visit →
Aspendale: Client Project Inspiration


Get inspired by our Warburton Project! This Aspendale design was customised to suit a tranquil bush setting, with the upgraded feature gable windows at the rear of the home to maximise natural light and treetop views. Please note: The Warburton Project is a client project and not available for display tours.
Avoca 12 Display Home
3 Bed | 1 Bath
The Avoca 12 is a three-bedroom home that blends classic charm with modern functionality. Its timeless exterior, optional wraparound porch, and French doors suit rural settings beautifully. Inside, a raked ceiling enhances the open living space, while built-in robes, a separate toilet, and a well-equipped laundry add everyday practicality.
As one of our newer designs in our range, this design is full of potential — and ready to be shaped to suit your vision.
Explore Display Home → Book A Visit →
Why Build A Modular Home In 2025
Choosing a modular home build in 2025 means embracing a smarter and more efficient approach to construction. With the ability to build in parallel with site preparation, factory-controlled precision, and a design process grounded in flexibility, modular homes offer a distinct edge.
At Anchor Homes, we take this further — combining premium materials, architectural detailing, and expert craftsmanship to create homes that are not only beautiful but built to last.
Book Your Display Home Visit Now
There’s no better way to understand the Anchor Homes difference than walking through one of our display homes. Each one reflects our commitment to design excellence and high-quality homes for Australians.
→ Book your visit today and see how modular can elevate your home build in 2025.




.png?width=864&height=576&name=Skillion.%20(5).png)


.png?width=864&height=576&name=Skillion.%20(6).png)

.png?width=1243&height=828&name=Skillion.%20(7).png)


.png?width=864&height=576&name=Skillion.%20(8).png)



%20(12).png?width=864&height=356&name=Add%20a%20subheading%20(1400%20x%20900%20px)%20(12).png)